Bureau à louer à Luxembourg-Centre ville

  • Référence : 2172749
  • Type : Bureau
  • Surface habitable : +/-286,00 m2
  • Superficie terrain : +/- 0 Ares
  • Loyer : 10 868 €
  • Provision sur charges : 1 430 €
  • Meublé : oui
  • Disponibilité : 01.09.2019
Contact
Emission de gaz à effet de serre (GES) : 
N_C

Description

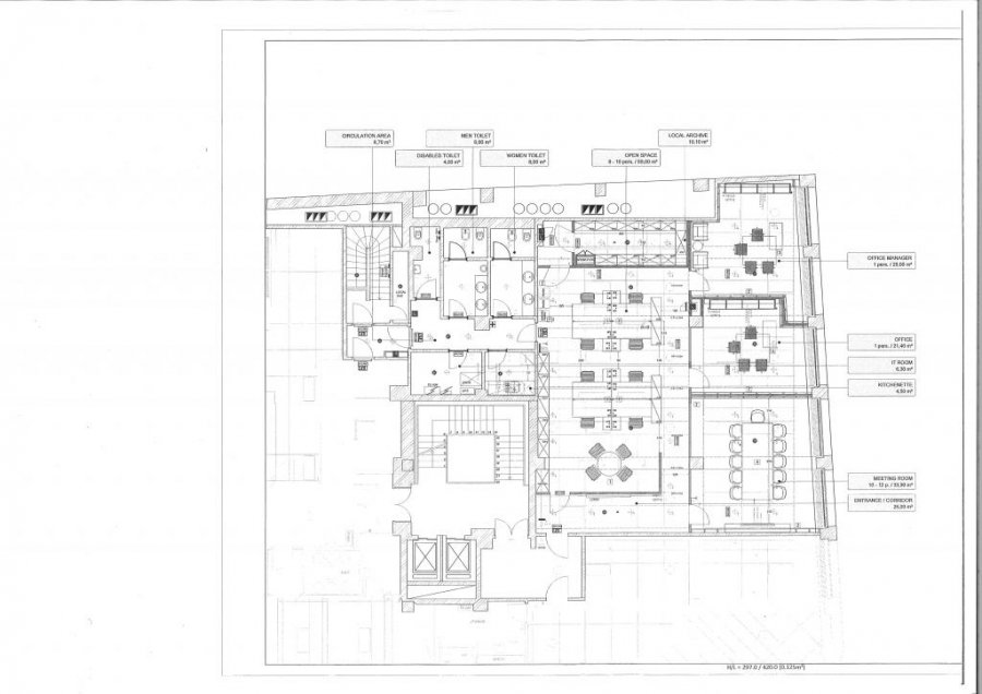
A louer, au croisement entre Boulevard de la Foire et Avenue Emile Reuter, dans le prestigieux bâtiment RADBURY, en face à l'immeuble de la Bourse de Luxembourg et à 200 mètres du Glacis et du centre ville, bureau de standing au premier étage de l'immeuble (voir plan annexé).

L'espace, équipé d'air conditionné et de détecteurs d'incendie, est déjà doté du câblage électrique et informatique et d'armoires intégrés dans les cloisons. Il se compose d'un open-space de +/- 60 m2, d'une salle de réunion de 34 m2, de deux bureaux de direction, d'un local serveur avec climatisation indépendante, d'une cuisine équipée, d'un local pour archives et de trois toilettes séparées.

A l'entrée de l'immeuble RADBURY se trouve un service de réception avec du personnel présent dans les heures de bureau, au bénéfice de tous les occupants du bâtiment, ainsi qu'une élégante salle d'attente. Un concierge est présent dans le bâtiment tout au long de la journée.

Possibilité de louer des emplacements parking dans l'immeuble ou dans des parkings à proximité.

La localisation est stratégique par la présence de nombreux acteurs du secteur des services et par le développement de Place de l'Étoile. L'arrêt du tram se trouve à proximité de l'entrée principale du bâtiment.

Le loyer et les charges sont indiqués HTVA.

D'autres biens sur www.venice-consulting.lu



Ref agence :2172749

Contactez-nous

+352 26 97 64 04
+352 621 35 66 84

Vous
 
Champs obligatoire
 
En envoyant ce formulaire, j’accepte que mes informations soient enregistrées puis utilisées par notre agence afin de répondre à ma demande. Consultez notre pour connaître vos droits.
 

Localisation

Code postal : 1528

Attention : Si l'adresse exacte n’est pas renseignée, le centre de la localité sera indiqué sur la carte.