Venice Consulting S.A.
10 rue des Muguets
L- 2167 Luxembourg-Centre-ville
Luxembourg
  +352 26 97 64 04
+352 621 35 66 84
Fax : +352 26 68 37 80

Appartement à vendre 2 chambres à Strassen

  • Référence : 2172928
  • Type : Appartement
  • Chambres : 2
  • Surface habitable : +/-94,55 m2
  • Superficie terrain : +/- 0,00 Ares
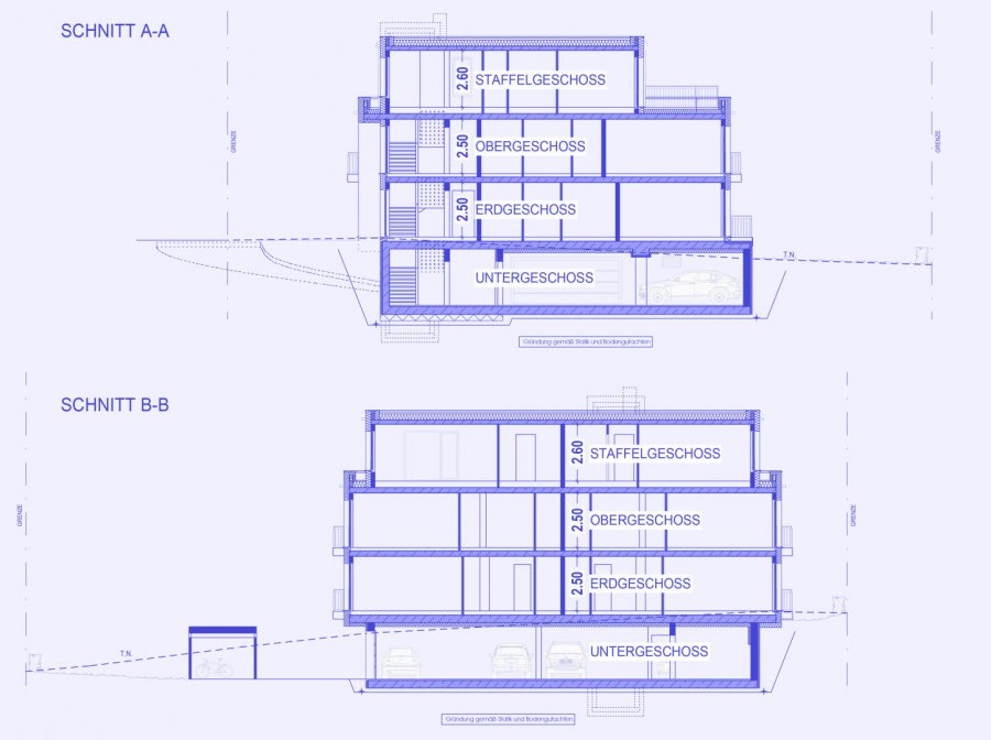
  • Etage : 1
  • Localisation : Strassen
  • Prix de vente : 1 037 000 €
  • neuf
  • Classe énergétique : A A
  • Classe d'isolation thermique : A
    Emission de gaz à effet de serre (GES) : 
    N_C

Description

Ce bien se trouve dans cette résidence

** A VENDRE ** APPARTEMENT 1.3 dans la résidence IDA à Strassen. Très bel appartement d'environ 86,83 m2 de surface habitable et 19,30 m2 de balcon, situé au premier étage de la résidence, se compose d'un hall d'entrée, d'un séjour/salle à manger avec cuisine ouverte, donnant accès vers le balcon en forme de L orienté Sud, de deux chambres à coucher, d'une salle de bains (double lavabo, baignoire, douche et WC), d'un WC séparé et d'un débarras/buanderie. L'appartement est doté d'un jardin privatif de 81,52 m2. La résidence comporte un niveau en sous-sol avec emplacements de parking, caves et locaux communs. De classe AAA, les logements sont à la pointe de la technologie offrant des prestations haut de gamme (chauffage au sol, triple vitrage, ventilation mécanique contrôlée, volets électriques). Le prix affiché s'entend avec le taux de TVA super-réduit de 3% (en cas d'affectation du bien à des fins d'habitation principale) sous réserve d'acceptation du dossier par l'Administration de l'Enregistrement et des Domaines. En cas d'investissement locatif la TVA sera de 17% sur la partie de la construction. Le prix du parking intérieur est en supplément. Garantie d'achèvement, garantie décennale et garantie biennale. D'autres biens sur www.venice-consulting.lu Ref agence :B2172923

Caractéristiques

Sanitaires

Salle de bain1

Extérieur

Balcon19.30 m²
Jardinoui

Voiture

Garage1

Autres

Ascenseuroui

Localisation